Поиск
|
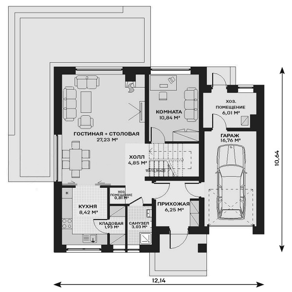
1 этаж 1 прихожая 6,25 м² 2 холл 4,85 м² 3 кухня 8,42 м² 4 кладовая 1,93 м² 5 гостиная + столовая 27,23 м² 6 санузел 3,03 м² 7 хоз.помещение 0,81 м² 8 комната 10,84 м² 9 хоз.помещение 6,01 м² 10 гараж 16,76 м² Всего 86,13 м² |
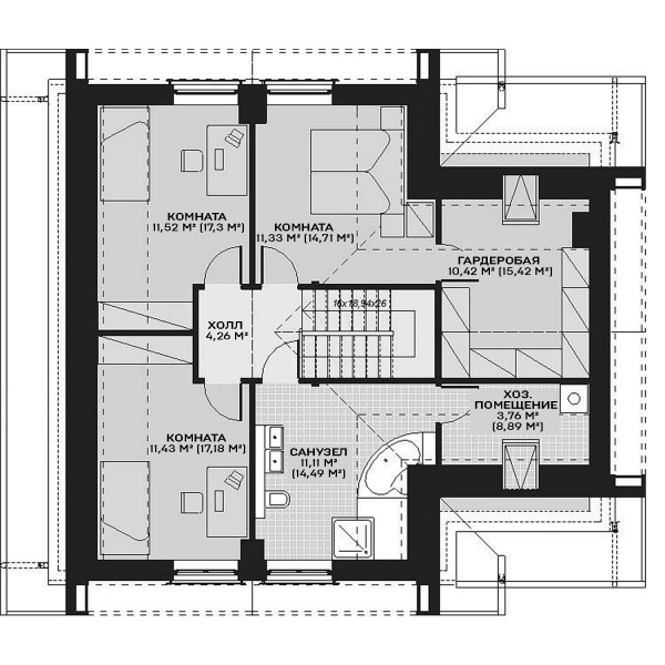
2 этаж 1 холл 4,26 м² 2 комната 17,18 м² 3 комната 17,3 м² 4 комната 14,71 м² 5 санузел 14,49 м² 6 гардеробая 15,42 м² 7 хоз.помещение 8,89 м² Всего 92,25 м² |
|
Всего: 178,38м² |
|
Описание:
План дома "Осло" рассчитан на участок средней ширины. Дом имеет типичные размеры 10 х 12, поэтому его постройка обойдется не дорого. Проект относится к категории домов с выступом, направленным перпендикулярно дороге, что часто указывается в плане пространственного развития. Проект был создан для земельных участков, позволяющих отдельно стоящие здания. Проект может быть расположен на границе участка, что позволяет строить двухквартирные дома. Автор проекта предсказал наличие единственного гаража в линии строительства. Это также отличное предложение для людей, которые ищут дом с двускатной крышей, что снижает расходы. Проект "Осло" представляет собой одноэтажный дом с мансардой, благодаря которому мы можем наслаждаться большой площадью, даже на относительно небольшом участке. Сердцем дома является просторная дневная зона, в которой приятно проводить время вместе с близкими. Кроме того, просторная кладовая - полезная комната. Дневная зона также создает просторную гостиную со столовой, благодаря которой члены домохозяйства могут объединиться в одном месте. Камин, расположенный в гостиной, не только выглядит великолепно, но и обеспечивает приятное тепло в прохладные дни. Полностью функциональная ванная комната предусмотрена как на первом этаже, так и на чердаке, что является отличным решением для большего количества членов семьи. Спальная зона состоит из четырех комнат, Это отличный вариант для семьи из 4-6 человек. Пространство также может быть использовано в качестве комнаты для гостей или учебы. В доме также было место для практических хозяйственных помещений. Терраса является идеальным местом для организации семейных торжеств и минут отдыха.
Приезжайте и лично убедитесь в нашей компетентности. Оставьте контакты и мы пригласим вас на объект.
Конечно. Наш менеджер сможет рассчитать сроки строительства дома, а так же его стоимость. При необходимости еще до заключения договора мы отрисуем дом в специальной программе и вы сможете прогуляться по его комнатам в виртуальном пространстве.
Гарантия до 10 лет на построенные нашей компанией дома. Мы уверены в профессионализме наших сотрудников и партнеров, которые поставляют нам строительные материалы и остуществляют работы.
Мы работаем по договору в котором фиксируем цену - никаких доплат не будет, даже если стоимость матерала вырастет в 1,5-2 раза. Мы имеем резервы материалов, которые приобрели еще по старым ценам.
Мы работаем со Сбербанком и другими кредитными организациями. При оформлении заявки на нашем сайте, сообщите нашему менеджеру, что планируете взять кредит через нашу компанию и он сориентирует вас по срокам и ставкам.
В нашей компании гибкая система платежей. Изначально идет оплатата разработку проекта, затем идут поэтапные платежи. Например: 80% за работы и материалы по фундаменту, оставшуюся часть после сдачи фундамента, далее стены первого этажа, перекрытие, второй этаж, крыша и окна оплачиваются по такой же схеме - поэтапно.
Конечно, мы строим по всей Московской области. При общении с менеджером сообщите ему, что вы хотели бы посетить один или несколько объектов и он подберет вам наиболее подходящие по вашему месторасположению.
Для полной прозрачности мы устанавливаем камеры видеонаблюдения на участке. Предоставляем доступ к специальной программе на телефоне. Вы в режиме 24/7 сможете наблюдать за всеми строительными объектами и при возникновении вопросов звонить прорабу и получать разъяснения.
Мы - компания полного цикла. Мы берем проект от идеи, до полного воплощения на участке. За нами не приходится доделывать работу. Например крышу мы заканчиваем полностью (подшиваем софитами, устанавливаем снегозадержатели, водосточную систему).
Даже в самые нелегкие времена мы фиксируем цену на строительство. Мы понимаем, что нашим Заказчикам комфортнее сразу знать, сколько они в итоге заплатят, без подводных камней. Мы предоставляем расчет и готовы строить по ранее оговоренной цене. Цену мы фиксируем в договоре подряда.
Мы строим каменные дома из газобетона и керамических блоков. В работе используем проверенных производителей, таких как Бонолит, Ytong, Wienerberger, Технониколь и др.
Здесь многое зависит от различных факторов: например погоды, уровня грунтовых вод, уклона на участке, сложности заезда, площади дома и прочих условий. В среднем строительство дома из газобетона в два этажа 100 - 150 м2 занимает 3 - 4 месяца.